• SCHAFFUNG GROSSZÜGIGE WOHNUNG DURCH ERWEITERUNG WOHNHAUS 1
  • SCHAFFUNG GROSSZÜGIGE WOHNUNG DURCH ERWEITERUNG WOHNHAUS 2
  • SCHAFFUNG GROSSZÜGIGE WOHNUNG DURCH ERWEITERUNG WOHNHAUS 3
  • SCHAFFUNG GROSSZÜGIGE WOHNUNG DURCH ERWEITERUNG WOHNHAUS 4
  • SCHAFFUNG GROSSZÜGIGE WOHNUNG DURCH ERWEITERUNG WOHNHAUS 5
  • SCHAFFUNG GROSSZÜGIGE WOHNUNG DURCH ERWEITERUNG WOHNHAUS 6

SCHAFFUNG GROSSZÜGIGE WOHNUNG DURCH ERWEITERUNG WOHNHAUS

Sanierung / Erweiterung Wohnhaus, Planung 2016, Umsetzung EnEV

LEISTUNGEN

Sämtliche Planungsleistungen bis einschließlich Bauantrag

GEBÄUDEDATEN

Bruttorauminhalt BRI neu: 380 m³, Bruttogeschossfläche BGF neu: 116 m², Gebäudeklasse 1

BESONDERHEITEN

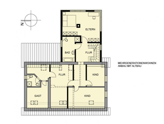
Schaffung einer großzügigen Wohnung mit 160 m² Wohnfläche und einer separaten Einliegerwohnung mit 85 m² durch Anbau an das vorhandene Wohnhaus und Umbau des alten Gebäudes. Besonders anspruchsvolle Planung, da tragfähiger Baugrund nur in Richtung Osten vorhanden und somit als Erweiterungsfläche geeignet. Neuer Baukörper für junge Familie in zeitgemäßer Architektur mit eigenem, gehobenem Anspruch, Ästhetik, Material und Form