• Sanierung historisches Pfarrgebäude
  • Sanierung historisches Pfarrgebäude
  • Sanierung historisches Pfarrgebäude
  • Sanierung historisches Pfarrgebäude
  • Sanierung historisches Pfarrgebäude
  • Sanierung historisches Pfarrgebäude
  • Sanierung historisches Pfarrgebäude
  • Sanierung historisches Pfarrgebäude

SANIERUNG HISTORISCHES PFARRGEBÄUDE

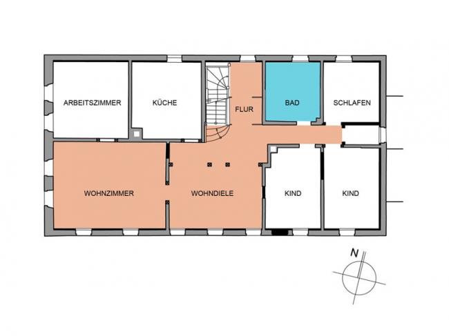
Sanierung historisches Pfarrhaus der Kirchgemeinde Oßling, hochwertige Modernisierung der Pfarrwohnung mit Wohndiele und Fachwerkraumteiler, Bezug 2016

LEISTUNGEN

Planungsleistungen mit Detail-/ Ausführungsplanung sowie Objektüberwachung

GEBÄUDEDATEN

Bruttorauminhalt BRI: 1.950 m³, Bruttogeschossfläche BGF: 537 m², Gebäudeklasse 1

BESONDERHEITEN

Planungszeit bis Baubeginn 1 Jahr, Kulturdenkmal aus 1783, denkmalschutzrechtliche Genehmigungen, energetische Ertüchtigung der historischen Gebäudekubatur mit Innendämmung, Erneuerung von historisch angepassten Fenstern und Türen, Bauzeit 5 Monate