• Neubau Wohnhaus mit Doppelcarport
  • Neubau Wohnhaus mit Doppelcarport
  • Neubau Wohnhaus mit Doppelcarport
  • Neubau Wohnhaus mit Doppelcarport
  • Neubau Wohnhaus mit Doppelcarport
  • Neubau Wohnhaus mit Doppelcarport
  • Neubau Wohnhaus mit Doppelcarport

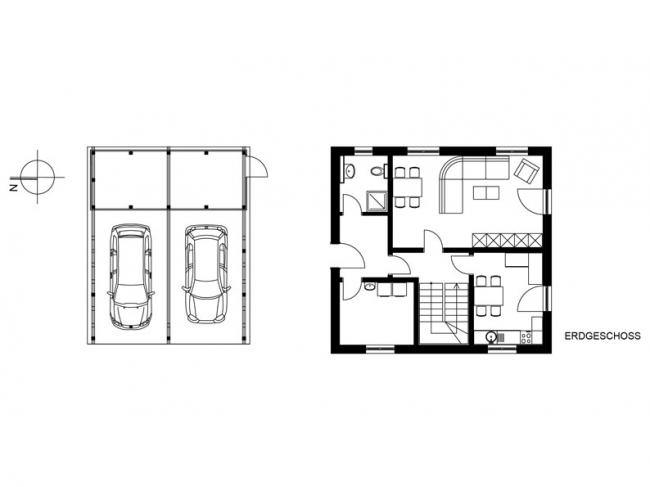
NEUBAU WOHNHAUS MIT DOPPELCARPORT

Errichtung eines Einfamilienhauses mit vier Wohnräumen, ausgebautem Satteldach und Doppelcarport in Bad Muskau OT Köbeln, Bezug 2016, Nachweis EnEV 2014

LEISTUNGEN

Sämtliche Planungsleistungen bis Ausführungsplanung sowie die Objektüberwachung

GEBÄUDEDATEN

Bruttorauminhalt BRI: 537 m³, Bruttogeschossfläche BGF: 169 m², Gebäudeklasse 1

BESONDERHEITEN

Planungszeit bis Baubeginn 10 Monate, fachgerechte Umsetzung aller Anforderungen an die Gründung durch zusätzliche Tragschichtpackung (Muskauer Faltenbogen), Bauzeit 11 Monate