• Erweiterung Pflegeeinrichtung
  • Erweiterung Pflegeeinrichtung
  • Erweiterung Pflegeeinrichtung
  • Erweiterung Pflegeeinrichtung
  • Erweiterung Pflegeeinrichtung
  • Erweiterung Pflegeeinrichtung
  • Erweiterung Pflegeeinrichtung

ERWEITERUNG PFLEGEEINRICHTUNG

BESCHREIBUNG

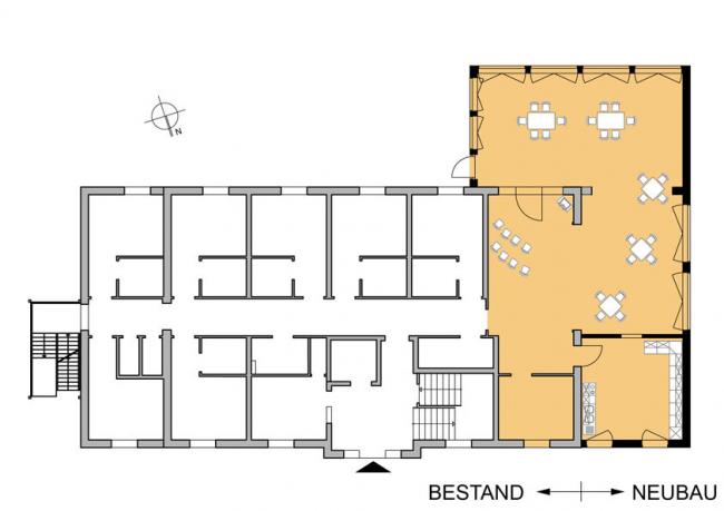
Erweiterung Pflegeheim durch Anbau an das bestehende Gebäude mit 3 Pflegezimmern und Aufenthaltsräumen, Bezug 2012, Einhaltung EnEV

LEISTUNGEN

Sämtliche Planungsleistungen bis Ausführungsplanung sowie die Objektüberwachung

GEBÄUDEDATEN

Bruttorauminhalt Anbau BRI: 747 m³, Bruttogeschossfläche aller Ebenen BGF: 256 m², Gebäudeklasse 3

BESONDERHEITEN

Planungszeit bis Baubeginn 1,5 Jahre, Neubau großzügiger lichtdurchfluteter Wintergarten als Aufenthalt, Optimierung der Arbeits-und Funktionsabläufe des Personals, alle Zimmer barrierefrei und behindertengerecht nach der DIN 18 040, Bauzeit 5 Monate